Apartamentos · Estudios · Áticos · Casas · Villas · Adosados · Parcelas · Negocio
Fuenlabrada
Comprar · Comerciales · Fuenlabrada
Comunidad de Madrid, España
Comunidad de Madrid, España
€ 125 000
8/PR99559655/7076
Comprar · Adosado · Fuenlabrada
Comunidad de Madrid, España
Comunidad de Madrid, España
€ 610 000
8/01301/1900
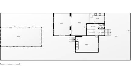
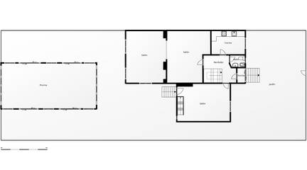
Chalet Pareado De Esquina
Habitaciones
4
Baños
3
Superficie total
275 m2
Parcela
313 m2



























































