Comprar · Comerciales · Oportunidad en Chamartín Viviendas a Reformar con Proyecto Aprobado
Superficie total: 150 m2
Superficie habitable: 150 m2
Parcela: 150 m2
Orientación: Sur
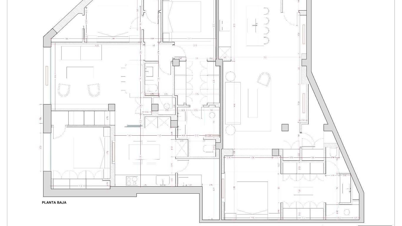
Se venden dos viviendas en planta baja, con un total de 150 m útiles, situadas a solo 3 minutos del Parque de Berlín y de la Plaza de Cataluña, en una calle tranquila junto a Príncipe de Vergara.
Estas propiedades se encuentran actualmente en proceso de transformación, con obra de segregación en ejecución y proyecto aprobado para cambio de uso de local a vivienda. Una excelente oportunidad para invertir o crear tu hogar a medida en una de las zonas más demandadas de Chamartín Ciudad Jardín.
Proyecto y documentación en regla. El cambio de uso cuenta con toda la documentación oficial y técnica aprobada, lo que garantiza seguridad y transparencia en el proceso: Hoja de encargo formalizada Documento de viabilidad urbanística Proyecto entregado y validado por la ECU Esto permite al comprador iniciar la reforma de inmediato, ahorrando tiempo y costes en gestiones administrativas.
Distribución prevista Vivienda 1: 85 m útiles Vivienda 2: 65 m útiles Ambas unidades ofrecen gran flexibilidad de diseño interior, ideales para adaptarlas según tus necesidades: vivienda familiar, alquiler, o inversión con alto potencial de revalorización.
Ventajas destacadas Proyecto de cambio de uso aprobado y en ejecución Posibilidad de personalizar la reforma Ubicación estratégica en Ciudad Jardín (Chamartín) Excelentes conexiones de metro, autobús y acceso directo a la M-30 Una oportunidad única de adquirir viviendas con proyecto aprobado y alto potencial de rentabilidad en pleno Chamartín.
Bancos, cajeros automáticos: Caixabank - 70m; Banco Santander - 90m
Tiendas, farmacias: Vadillo - 50m; Farmacia Prosperidad - Calle Marcenado 29 - 80m; Talleres J.L.Rodenas - 90m; ONCE - 90m; Ferretería Hernanz - 90m; Papelería Coplan - 90m
Cafés, restaurantes: Lu&Cia - 50m; Casa Benigna - 60m; Tux Bar - 70m; Taberna La Tachuela - 90m; Bakers&Coffee - 90m; Paleo&Keto - 100m
Educación: Colegio Público Nicolás Salmerón - 160m; Centro Privado de Educación Infantil, Primaria y Secundaria Fundación Santamarca - 220m; Centro Privado de Educación Secundaria Guzmán el Bueno - 260m; Colegio de Educación Infantil y Primaria Luis Bello - 420m; Centro Privado de Educación Infantil, Primaria y Secundaria San Ramón y San Antonio - 430m
Comunidad de Madrid, España
Comunidad de Madrid, España
Comunidad de Madrid, España
Comunidad de Madrid, España
Comunidad de Madrid, España
Comunidad de Madrid, España
Comunidad de Madrid, España






































































































































































































































