Квартиры · Студии · Пентхаусы · Дома · Виллы · Таунхаусы · Участки · Бизнес
Купить · Коммерческая · Светлый мезонин рядом с судами, авеню и Корте Инглес. Идеальный профессиональный офис
€
Ref. N: 8/APCARLET/7061
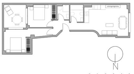
Спальни: 3, Ванные комнаты: 1
Общая площадь: 130 м2
Жилая площадь: 60 м2
Ориентация: Восток
Этаж: 1
Если вы ищете центральное, светлое и с хорошим транспортным сообщением место для своего бизнеса, то эта мезонинная квартира — ваш шанс. Стратегическое расположение: В нескольких метрах от судов Аликанте Всего в 800 метрах от станции AVE и El Corte Inglés Несколько парковочных мест у одной двери, чтобы ваши клиенты могли добраться без проблем Характеристики помещения: Просторное и открытое пространство с различными вариантами планировки Большие окна, выходящие на восток, гарантируют естественное освещение в течение всего дня Отдельная ванная комната Видимость и присутствие благодаря стеклянному фасаду Идеально подходит для юридических фирм, консалтинговых компаний, медицинских клиник, архитектурных студий, коворкингов или любой профессиональной деятельности, которая требует комфортного, представительного и очень хорошо расположенного пространства.
Ипотека
Купить · Аликанте
Валенсийское сообщество, Испания
Валенсийское сообщество, Испания
€ 185 000
Квартира · 8/APCARLET1/7061
Купить · Аликанте
Валенсийское сообщество, Испания
Валенсийское сообщество, Испания
€ 192 000
Квартира · 8/RCCARB004/6255











































