Apartamentos · Estudios · Áticos · Casas · Villas · Adosados ​​· Parcelas · Negocio

Comprar · Apartamento · Preciosos Pisos De Obra Nueva

€ 325 420 [€ 2829/m2]
Ref. N: 6/2946ON-19/1639

Habitaciones: 3, Baños: 2
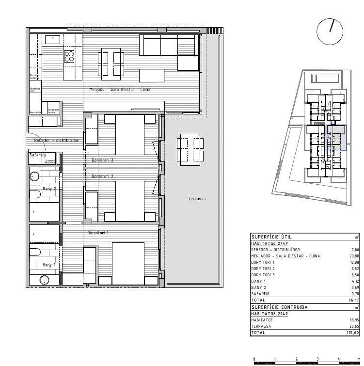
Superficie total: 115 m2
Superficie habitable: 77 m2

Vistas: Mar; Orientación: Sur; Mueble: Cocina Equipada, Cocina Equipada
Planta: 3, Plantas: 4

Si desea vivir en un entorno privilegiado cerca de todos los servicios no deje escapar esta oportunidad venga a visitar esta nueva construcción de un edificio plurifamiliar compuesto por 24 viviendas situado en la localidad de Cunit. Este bloque de nueva construcción ha sido diseñado con un enfoque en la elegancia moderna. Cada piso ha sido meticulosamente diseñado para maximizar el espacio y la luz, creando un ambiente acogedor y atractivo y con los más altos estándares de calidad. Desde los acabados interiores hasta los electrodomésticos de alta gama, como cada pequeño detalle, garantizando la máxima satisfacción para del propietario. Con una superficie construida total de 115,60 m2 de vivienda, y 88,95 m2 construidos interior de vivienda se encuentra distribuidos 3 amplias habitaciones (1 de ellas suitte), salón comedor con cocina americana de 31,43 m2 totalmente equipada con todos los electrodomésticos, 2 baños completos, 1 lavadero con los electrodomésticos integrados de lavadora y secadora marca BALAY, recibidor, terraza de 26,65 m2, suelos porcelanamicos en toda la vivienda, carpintería exterior de aluminio de color gris claro de perfil eficiente y con rotura de puente térmico, carpintería interior con puertas correderas lacadas en blanco. Además, contamos con zona comunitaria con piscina, ascensor y plazas de parking opcionales. El entorno y municipio: Cunit se encuentra situado en la comarca del Bajo Penedés y en la provincia de Tarragona aunque está incluido en la tercera corona de la región urbana de Barcelona. Limita con Segur de Calafell (localidad del municipio de Calafell), de la misma comarca, así como con Cubellas, en la comarca del Garraf, y Castellet y Gornal, en la comarca del Alto Penedés, ambos de la provincia de Barcelona. Su paisaje es típicamente mediterráneo desde los 2,5 km de playas de arena fina, protegidas por los espigones que le proporciona sus formas semicirculares características, pasando por las planicies agrícolas (denominadas Prats de Cunit i Plana del Castell) hasta las sierras del centro (Sierra de Sant Antoni) y norte del municipio, siendo parte de las últimas montañas de la sierra litoral catalana.

Planificación y diseño: TV por Satélite, Ascensor, Aire Acondicionado, Calefacción, Video portero, Puerta blindada, Cuarto de lavado, Obra Nueva, Cochina americana

Al exterior: Piscina

Bancos, cajeros automáticos: Banco Sabadell - 130m; Caixabank - 150m; BBVA - 200m; CatalunyaCaixa - 1490m
Supermercados: Bonpreu - 190m; Bon Area - 230m; ALDI - 250m
Tiendas, farmacias: Òptica Cunit - 130m; Optimus Ferreteria - 150m; Farmàcia Jordi Serrano Baiget - 220m; Estilistes Sonia - 260m; Tintorería Higiensec - 330m; Estació de Cunit - 770m
Cafés, restaurantes: Bar Cafetería Parc Central - 110m; La Rambla - 140m; Burger King - 140m; Ristorante Piero - 230m; Y la pizza Pa Cuando - 360m; Bar Manolo - 1140m
Playas: Platja de Cunit-Ponent - 660m; Platja de Cunit-Llevant - 860m; Platja de Segur - 920m; Platja de l'Estany - el Mas Mel - 1810m; Platja de les Gavines - 1870m
Paradas de autobus: El Prat de Cunit - C.A.P. Cunit - 90m; CAP-IES-CEIP-EB-Zona Esportiva - 270m; La Ponderosa - 440m
Educación: Escola Pompeu Fabra - 180m; Institut Ernest Lluch i Martí - 250m; Escola Els Cossetans - 1010m; Escola Solcunit - 1510m; Escola La Ginesta - 2100m

Playa 700 m

Hipoteca

Merkapiso Manager

Contacta al vendedor [ Ref.: 6/2946ON-19/1639 ]
Al hacer clic en "Enviar mensaje", acepta la Política de privacidad
Comprar · Cunit
Cataluña, España
€ 281 000
Apartamento · 6/3061S-12/1639
Playa: 51m
3
·
2
·
85 m2