Wohnungen · Studios · Penthouses · Häuser · Villen · Reihenhäuser · Grundstücke · Gewerbe

Kaufen · Gewerbeimmobilien · Magnifico Local Comercial a Pie de Calle, de 310M2 Construidos, en Gran Via Marqués Del Turia Al Lado Del Metro de Parada Angel Guimera

Reserviert / Aus dem Markt
€ 395 000 [€ 1274/m2]
Ref. N: 8/MARISAN312V/1598

Schlafzimmer: 11
Wohnfläche: 310 m2
Wohnfläche: 294 m2

Orientierung: Ost

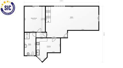
MAGNIFICO LOCAL COMERCIAL a pie de calle, en gran via marqués del turia, centrico. Este amplio espacio de 315 M2 construidos y aprox 295 m2 útiles esta al lado del metro de la parada de Angel Guimera, con mucha afluencia de gente, enfrente de la puerta tiene un paso de peatones, la zona es muy concurrida y con mucha actividad comercial, al lado del colegio Jesus y Maria. Tiene una gran puerta de entrada y al lado un gran ventanal que podría ser un gran escaparate que aporta gran visibilidad y luminosidad con una fachada de 8 metros lineales, tu negocio tendrá una visibilidad excepcional Local de tres plantas y de grandes dimensiones. Al acceder, encontramos una zona de recepción con amplias salas de trabajo que ofrecen múltiples posibilidades de uso, hay 10 estancias pero son con paneles móviles que se pueden quitar y quedara diáfano. Además, dispone de un despacho independiente, ideal para gestión administrativa o reuniones privadas, hay mucha armariada. La propiedad también cuenta con dos cuartos de baño y una gran zona de almacén, perfecto para almacenamiento y logística. Se distribuye en 3 plantas, una a pie de calle de aprox 87.59m2, la planta primera es de 103.69m2 y la planta inferior de 103.20m2 . Dispone de dos baños . Situado en pleno centro es un espacio ideal para emprender tu nuevo proyecto, con muchas posibilidades de negocio. Tienes las altas dadas de agua y de luz. Anteriormente era una oficina bancaria. Su ubicación es privilegiada y estratégica, situado junto a toda clase de servicios como colegios, supermercados, farmacias, colegios, transporte público muy cercano a la parada del metro de Angel Guimerá y diferentes paradas de autobús etc. Zona residencial y comercial con gran tránsito de personas. Este anuncio es meramente informativo y no tiene valor contractual.

Planung und Design: Verstärkete Tür

Banken, Geldautomaten: Banco Santander - 50m; Caixabank - 120m; Servired - 140m
Supermärkte: Consum - 200m; Nuevo Centro - 900m
Geschäfte, Apotheken: Alicia Ramírez - 50m; J. Martinez - 70m; Carrefour Express - 130m; Opticalia - 160m; Panaria - 170m; ONCE - 170m
Cafés, Restaurants: Espinosa - 90m; News & Coffee - 800m
Bushaltestellen: Ferran el Catòlic - Juan de Mena - 70m; Ferran el Catòlic - Gabriel Miró - 110m; Àngel Guimerà - 180m
Ausbildung: Centre Concertat d'Esenyament Escolàpies - 50m; Colegio Jesús-María Fernando el Católico - 80m; Col·legi Públic Teodor Llorente - 190m; Institut d'Educació Secundària Abastos - 350m; Col·legi d'Educació Infantil i Primària Lluís Vives - 410m

Strand 9000 m

Hypothek

Dmitry Ivanus

Kontaktieren Sie den Verkäufer [ Ref.: 8/MARISAN312V/1598 ]
Indem Sie auf "Nachricht senden" klicken, stimmen Sie der Datenschutzerklärung zu
Kaufen · Valencia
Autonome Gemeinschaft Valencia, Spanien
€ 327 000
Wohnung · 8/3424-01861/1314
5
·
2
·
100 m2
Kaufen · Valencia
Autonome Gemeinschaft Valencia, Spanien
€ 363 000
Wohnung · 8/cdlh1542/12873
4
·
2
·
96 m2
Kaufen · Valencia
Autonome Gemeinschaft Valencia, Spanien
€ 399 000
Wohnung · 8/3424-01767/1314
Aussicht: Meer
5
·
2
·
181 m2
Kaufen · Valencia
Autonome Gemeinschaft Valencia, Spanien
€ 415 000
Wohnung · 8/3424-01868/1314
3
·
2
·
111 m2
Kaufen · Valencia
Autonome Gemeinschaft Valencia, Spanien
€ 430 000
Wohnung · 8/3424-01925/1314
3
·
1
·
108 m2
Kaufen · Valencia
Autonome Gemeinschaft Valencia, Spanien
€ 469 900
Wohnung · 8/10112-3554/1930
2
·
1
·
117 m2