Sale · House · New-Build Villas in Santa Rosalia Lake and Life Resort Exclusive Living in Murcia
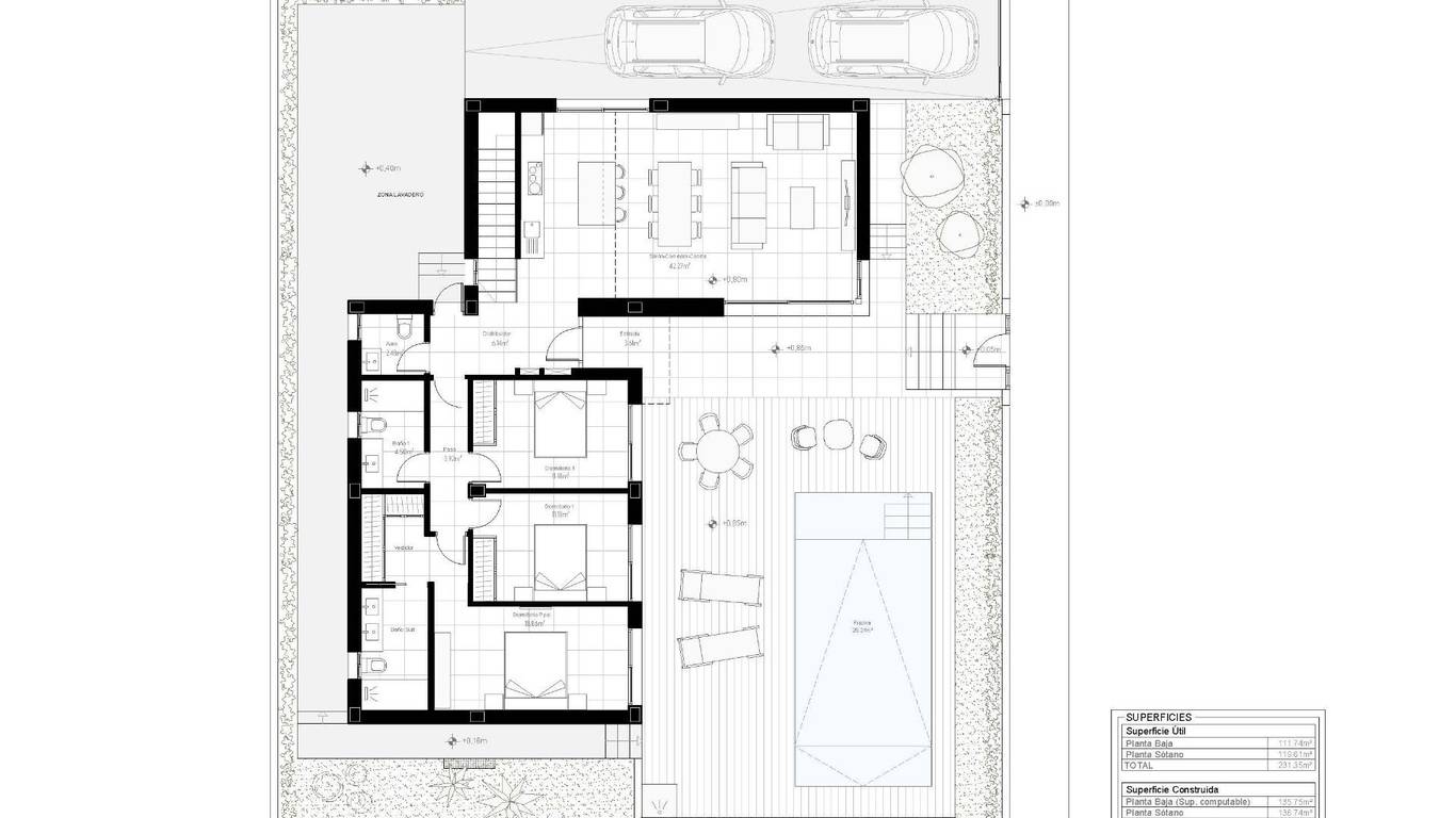
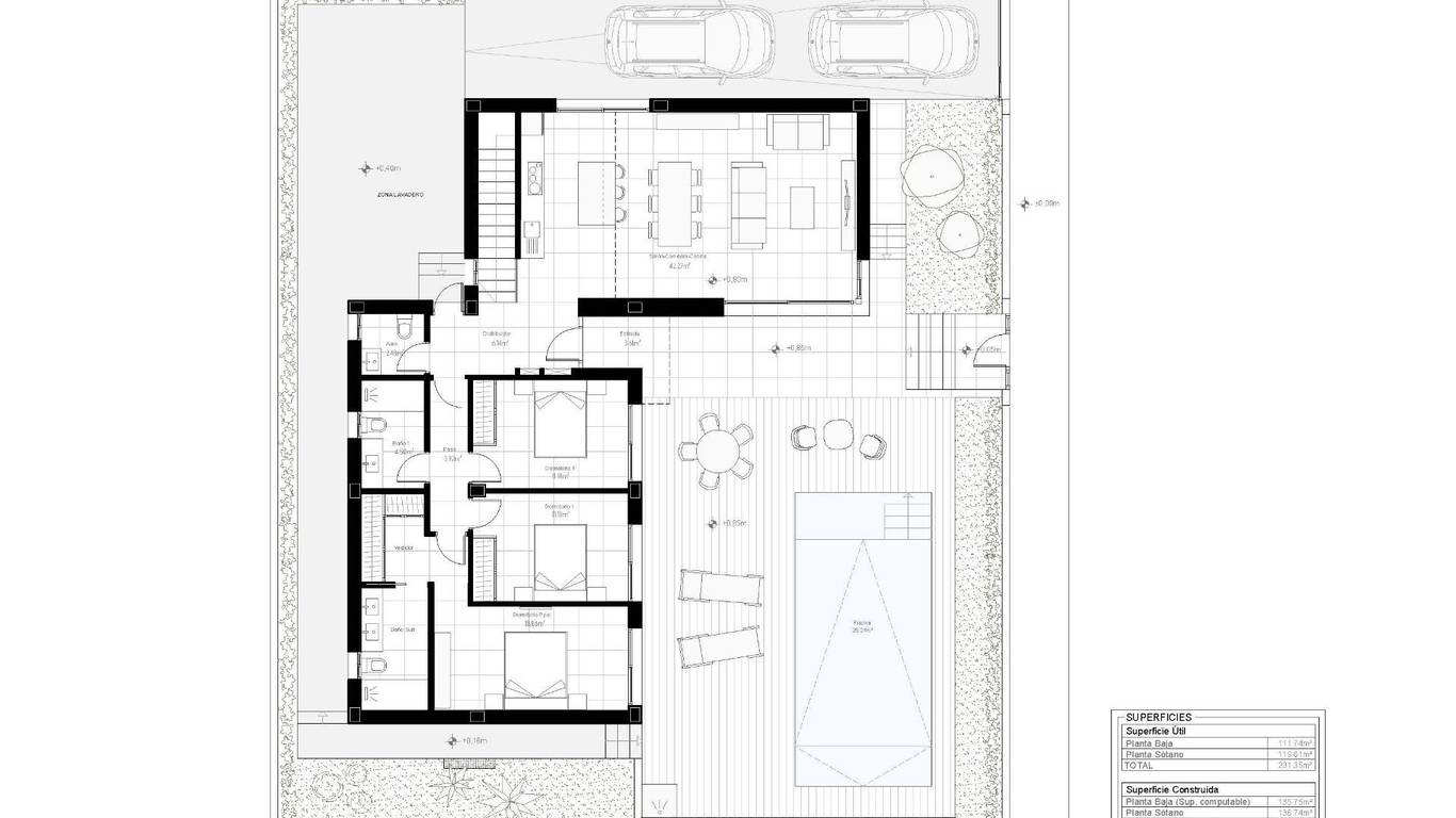
Bedrooms: 3, Bathrooms: 2
Total area: 272 m2
Living area: 231 m2
Plot: 426 m2
Parking: Private; Furniture: Equipped Kitchen
Total floors: 2, Terrace: 60 m2
New-Build Villas in Santa Rosalia Lake and Life Resort Exclusive Living in Murcia. Prime Location Near the Mar Menor. These newly built villas are located in the prestigious Santa Rosalia Lake and Life Resort, a private gated community in the Region of Murcia.
Surrounded by top-class golf courses and just 4 km from the golden beaches of the Mar Menor, the development offers a perfect combination of privacy, nature, and luxury living.
The lively coastal town of Los Alcázares is only a 5-minute drive away, while the historic city of Cartagena is 15 minutes away. Murcia International Airport can be reached in approximately 22 km, ensuring easy access from major European cities. Contemporary Villas Designed for Comfort.
Each villa features a modern, open-plan design with 3 bedrooms, 2 bathrooms, and a guest toilet. The bright and spacious living area integrates a fully equipped kitchen with a dining and lounge space, leading out to a landscaped private garden with a swimming pool.
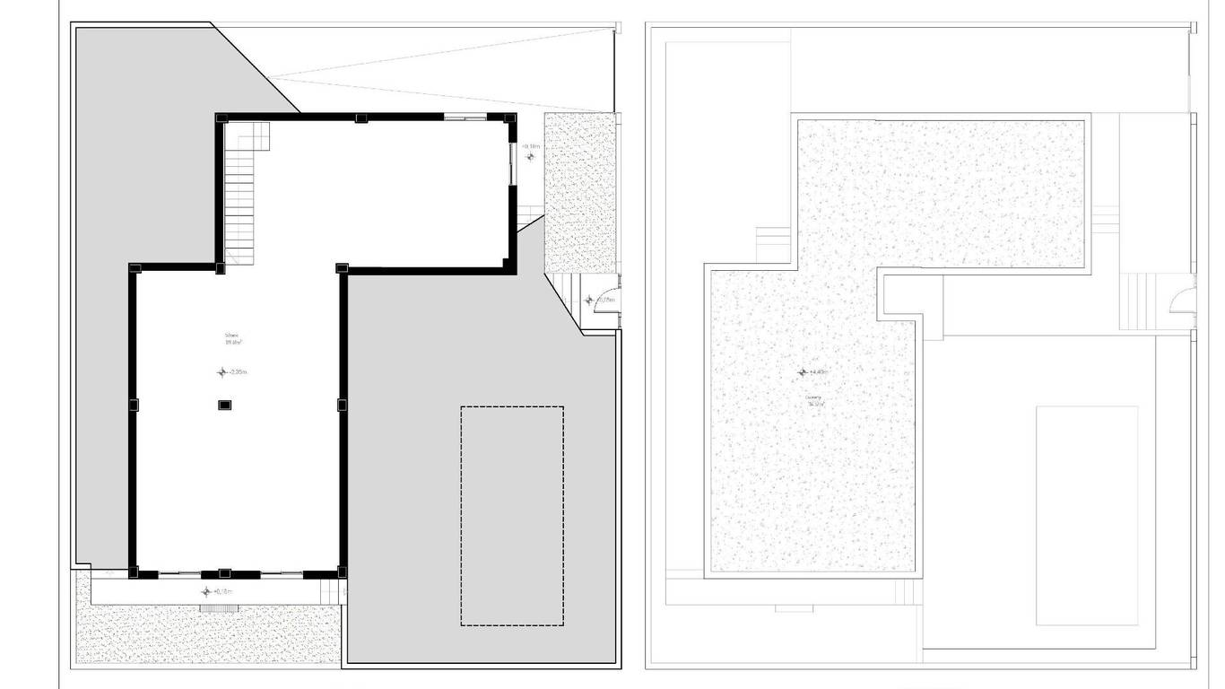
A private off-road parking space is also included. On the lower level, a finished basement of 136 m with smooth walls, water, and electricity connections provides a versatile space for additional bedrooms, an office, gym, cinema room, or childrens play area.
High-Quality Finishes and Sustainable Features. Attention to detail is evident in every aspect of these homes. Highlights include a reinforced security door, motorized shutters in the bedrooms, built-in wardrobes, and a kitchen furnished with appliances.
Sustainable living is ensured by six installed photovoltaic solar panels. The garden is fully finished with artificial grass, palm tree, automatic irrigation, and decorative shrubs. An efficient ducted air conditioning system ensures year-round comfort.
Santa Rosalia Lake and Life Resort A Caribbean-Style Oasis. The resort boasts 126,000 m of beautifully landscaped green areas with walking and cycling paths, sports facilities, paddle and tennis courts, mini-golf, dog parks, leisure spaces, and a clubhouse.
The centerpiece is a spectacular 17,000 m crystal-clear lagoon with white sandy beaches and palm trees, creating a true Caribbean atmosphere. Two islands feature leisure areas, including a bar and charming beach clubs scattered around the lake. Ideal for Relaxation, Sports, and Investment.
This unique development is perfect for those seeking a primary residence, a holiday home, or a high-return investment. Its strategic location provides easy access to cultural, gastronomic, and recreational attractions, making it an exceptional choice for families and golf enthusiasts alike.
Contact us today to secure your new villa in Santa Rosalia Lake and Life Resort and start enjoying the Mediterranean lifestyle.
Planning and Design: Reinforced door, Sauna, Basement, Satellite TV, Central air conditioning, New building
Outdoor Features: Urbanization
Supermarkets: La Tienda de Los Olmos - 3240m; Mercadona - 4570m; Spar - 4690m; ALDI - 4910m; Agromediterránea - 5690m
Shops, pharmacies: Muebles Murcia - 1520m; Jardimar - 2570m; Hermanos Galindo Conesa - 3200m; Iluminación Ceyga - 3220m; Panadería Escudero - 3460m; Farmacia San José - 3580m
Cafes, restaurants: Acuario - 450m; Bar Minigolf - 470m; Casa Pedro - 950m; Bar La Torre - 1560m; La Petanca - 1630m; La Perla Negra - 1710m
Education: Colegio Público Santa María del Buen Aire - 3040m; Colegio Al Kazar - 3260m; Grupo Escolar Los Alcázares - 3840m; CEIP Petra Sánchez Rollán - 3920m; CEIP San Antonio - 4480m
| Beach | 3600 m |
|---|
















