Kaufen · Haus · Key Ready Villa In Fuente Alamo, Murcia
Schlafzimmer: 3, Badezimmer: 2
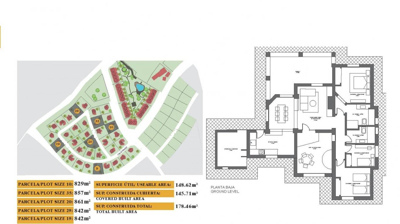
Wohnfläche: 178 m2
Wohnfläche: 148 m2
Grundstück: 861 m2
Parkplatz: Privat
Stockwerk: 1, Terrasse: 30 m2
Planung und Design: Verstärkete Tür, SAT TV, Speicher, Vorinstallation für die Klimaanlage, Neues Gebäude
Draußen: Urbanisierung
Supermärkte: El Molinero - 7180m; Lidl - 8450m; Mercadona - 8560m; The Food Co - 8640m
Geschäfte, Apotheken: Méndez Madrid - 7130m; Farmacia Isla Plana - 7170m
Cafés, Restaurants: Restaurante Montemar - 6910m; La zagalica - 7070m; Buenavista Club Social - 7110m; Chiringuito La Guarida - 7270m
Strände: El Mojón - 6950m; Negra - 6950m; El Alamillo - 7120m; Playa Cabezo del Mojón - 7160m; La Caleta - 7250m; Playa de Isla Plana - 7260m
Bushaltestellen: La Esperanza - 2380m; Los Ruices - 2660m; Ermita de Tallante - 5290m; Camping Los Delfines - 6910m; Los Madriles, Camping - 7040m; Isla Plana, A. VV. - 7190m
Ausbildung: Colegio Peñas Blancas - 5350m; Colegio Siglo XXI - 6120m; Colegio Público Puig Campillo - 6740m; CP Manuela Romero - 8210m; CP Miguel Delibes - 8400m
| Strand | 7500 m |
|---|










































