Sale · House · Key Ready Villa In Fuente Alamo, Murcia
Bedrooms: 3, Bathrooms: 2
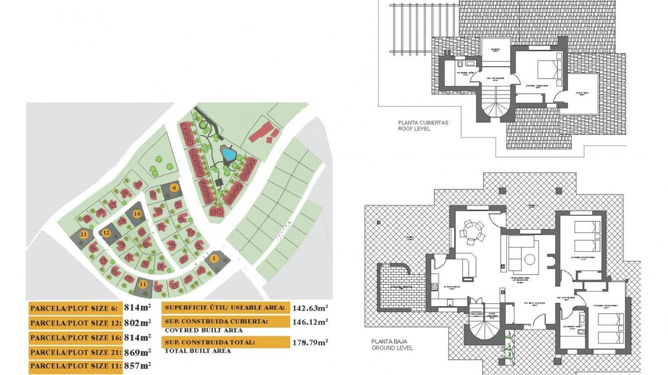
Total area: 178 m2
Living area: 148 m2
Plot: 850 m2
Parking: Private
Total floors: 2, Terrace: 60 m2
Planning and Design: Built-in wardrobe, Reinforced door, Sauna, Satellite TV, Storeroom, Pre-installation for air conditioning, New building
Outdoor Features: Urbanization
Supermarkets: El Molinero - 7180m; Lidl - 8450m; Mercadona - 8560m; The Food Co - 8640m
Shops, pharmacies: Méndez Madrid - 7130m; Farmacia Isla Plana - 7170m
Cafes, restaurants: Restaurante Montemar - 6910m; La zagalica - 7070m; Buenavista Club Social - 7110m; Chiringuito La Guarida - 7270m
Beaches: El Mojón - 6950m; Negra - 6950m; El Alamillo - 7120m; Playa Cabezo del Mojón - 7160m; La Caleta - 7250m; Playa de Isla Plana - 7260m
Bus stops: La Esperanza - 2380m; Los Ruices - 2660m; Ermita de Tallante - 5290m; Camping Los Delfines - 6910m; Los Madriles, Camping - 7040m; Isla Plana, A. VV. - 7190m
Education: Colegio Peñas Blancas - 5350m; Colegio Siglo XXI - 6120m; Colegio Público Puig Campillo - 6740m; CP Manuela Romero - 8210m; CP Miguel Delibes - 8400m
| Beach | 7500 m |
|---|





































