Acheter · Maison · Villas Nouvelle Construction à Fortuna
Chambre: 3, Salles de bain: 2
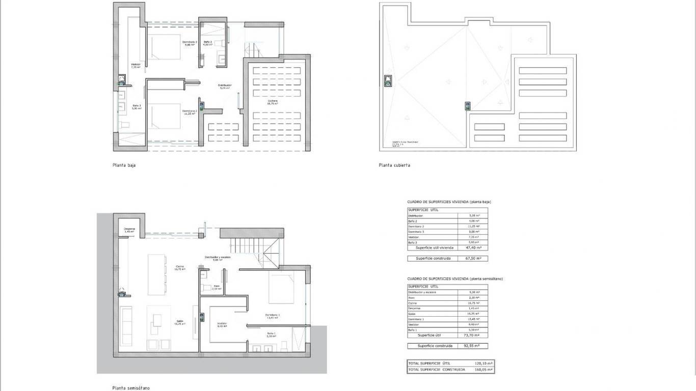
Surface totale: 146 m2
Surface habitable: 120 m2
Terrain: 365 m2
Parking: Privé
Total d'étages: 2, Terrasse: 20 m2
Agencement, design: Porte renforcée, TV satellite, Nouveau bâtiment
Supermarchés: Supermercado Unide - 2860m; Mercadona - 12470m; Supercor - 14130m
Commerces, pharmacies: Farmacia Pérez Belda - 2640m; Tanatorio Municipal - 2760m; Farmacia Sánchez García & Sánchez Polo - 2790m; Fortuna - 2980m; Tanatorio "Gonzalo Blasco" - 7090m; Vivero - 14640m
Cafés, Restaurants: Café-Teatro - 1450m; H Balneario Restaurante - 1470m; El musico - 2300m; Qué Caña - 2890m; El Rincón de Andalucía - 2930m; Carpe Diem - 2940m
Éducation: Instituto de Educación Secundaria Santa María de los Baños - 2180m; CEIP "San Antón" - 2270m; Guardería Municipal de Fortuna - 2640m; CEIP "Maestro Sixto López Navarro" - 2660m; CEIP "Vicente Aleixandre" - 2950m
| Plage | 44000 m |
|---|
















