Sale · House · Contemporary Villa with Panoramic Sea Views in La Fustera, Benissa Costa
Bedrooms: 4, Bathrooms: 3
Total area: 342 m2
Living area: 290 m2
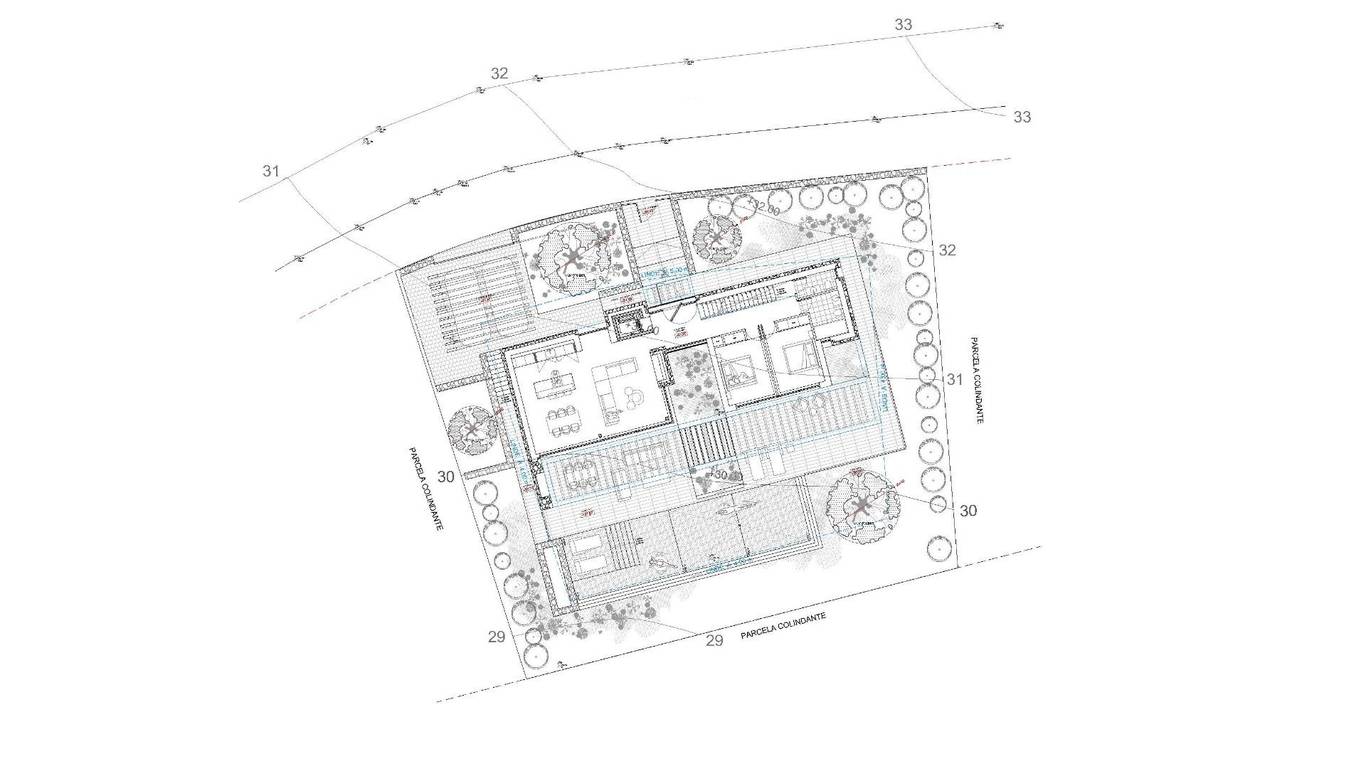
Plot: 800 m2
Views: Sea; Parking: Private; Furniture: Equipped Kitchen
Total floors: 3, Terrace: 157 m2
Contemporary Villa with Panoramic Sea Views in La Fustera, Benissa Costa. This exclusive new-build villa, designed by a renowned architect and developed by a local developer with more than 20 years experience, sits on an 800 m plot just a few steps from La Fustera Beach.
Blending Mediterranean warmth with contemporary elegance, the architecture combines natural stone, wood, and soft neutral tones, integrating seamlessly with the coastal landscape.
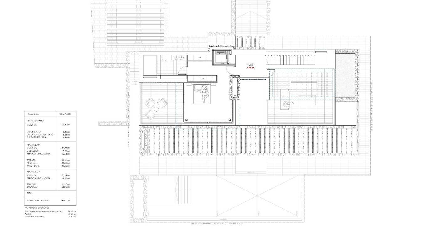
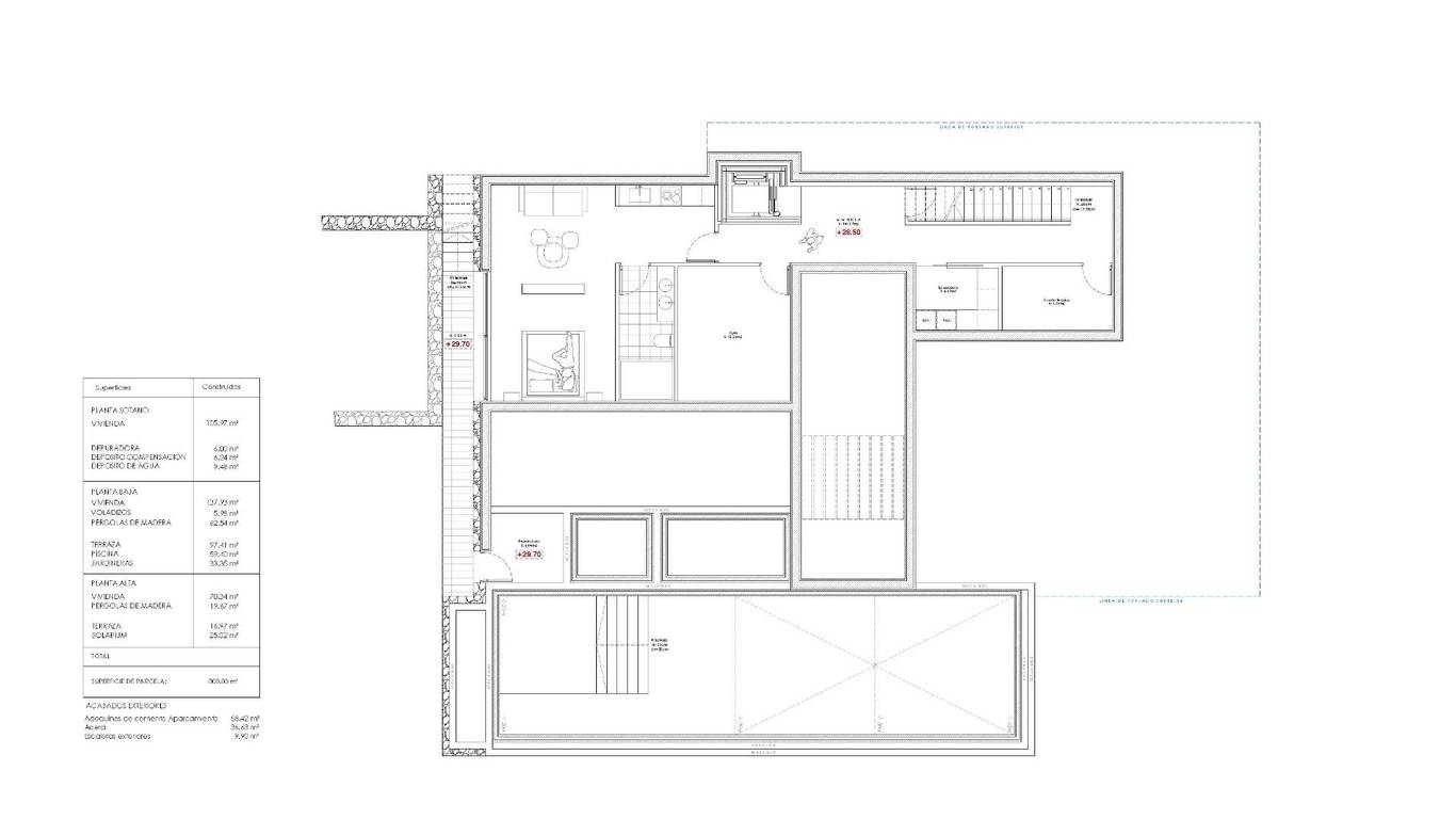
With a total built area of 716 m distributed over three levels - basement, ground floor, and first floor - the villa offers a perfect balance between functionality, design, and comfort. Basement Level. The lower floor of 105.97 m is designed for both practicality and leisure.
It includes a fully equipped gym, laundry room, and technical areas, with the option to adapt additional spaces as a wine cellar, cinema, or multipurpose room. This level also houses the pools filtration system and water tanks, ensuring efficient management of all technical installations.
Ground Floor. The main level, with 137.93 m, unfolds in a bright open-plan layout that captures the essence of Mediterranean living. The spacious living room, dining area, and kitchen open through large floorto-ceiling windows onto the main terrace and infinity pool, framing incredible panoramic sea views that define the character of this home.
Two double bedrooms, a full bathroom, and a guest toilet complete this floor, providing comfort and functionality. Outside, a wooden pergola shades the outdoor lounge and dining areas, surrounded by lush gardens, sun terraces, and a 59.40 m infinity pool that visually merges with the sea. First Floor.
The upper level, with 70.19 m, is reserved for the master suite - a private retreat featuring a walk-in closet, en-suite bathroom, and a large private terrace with breathtaking views of the Mediterranean Sea.
A second bedroom or office space completes this floor, which also provides access to a 25.02 m solarium, ideal for relaxing under the sun and enjoying the serenity of the surroundings. Exterior and Location.
Located on a quiet residential street surrounded by modern villas, this property enjoys an exceptional position just a 3-minute walk from La Fustera Beach (150m), the Mandala Beach Bar Restaurant, and essential amenities such as supermarkets and local services.
Designed with an emphasis on light, space, and seamless indoor-outdoor living, this villa embodies the modern Mediterranean lifestyle - elegant, relaxed, and in perfect harmony with its spectacular panoramic sea views.
Secure your dream villa in La Fustera, Benissa Costa, and embrace the ultimate Mediterranean lifestyle with breathtaking sea views and unmatched comfort.
Planning and Design: Reinforced door, Sauna, Basement, Satellite TV, Storeroom, Central air conditioning, New building
Outdoor Features: Gym, Urbanization
Supermarkets: Algi Market - 240m; Mercachina - 1330m; Pepe La Sal - 2070m; Consum - 2220m; Lidl - 3190m
Shops, pharmacies: Filet Pur - 390m; Yelarsan - 390m; Les Basetes - 820m; Pedros - 2800m; Master Garden - 3490m
Cafes, restaurants: Restaurante Asia - 150m; Mandala Beach Bar - 180m; Ls fustera - 220m; Baix Del Pi - 260m; Pic D'or - 290m; oceana club - 830m
Beaches: Cala de la Fustera - 180m; Cala dels Pinets - 270m; Punta Prado - 380m; Cala de la Llobella - 570m; Cala Advocat - 1200m; Cala del Mallorquí - 1270m
Bus stops: la Fustera - 160m; Biblos - 1350m
| Beach | 150 m |
|---|















