Apartamentos · Estudios · Áticos · Casas · Villas · Adosados ​​· Parcelas · Negocio

Comprar · Apartamento · Espectacular Apartamento en Edificio Orbiplaya en Primera Línea de Playa

Reservado / Fuera del Mercado
€ 179 900 [€ 2767/m2]
Ref. N: 3/VIK114

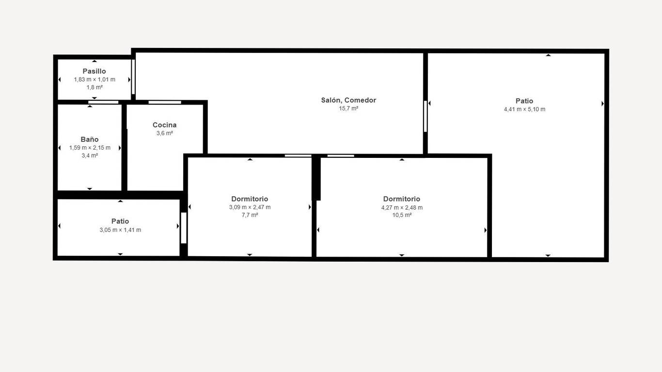
Habitaciones: 2, Baños: 1
Superficie total: 65 m2
Superficie habitable: 56 m2

Orientación: Oeste; Mueble: Cocina Equipada, Amueblado
Planta: 1, Terraza: 18 m2

Espectacular apartamento en edificio Orbiplaya en primera línea de playaLa Playa de Los Locos es uno de los rincones más buscados de Torrevieja: Vivir aquí significa disfrutar de la esencia mediterránea a cada paso, con restaurantes frente al mar, calas cercanas para desconectar y la comodidad de tener todo lo que necesitas a mano.Este apartamento forma parte de un edificio residencial en primera línea de playa Orbiplaya, lo que significa que el Mediterráneo será tu vecino más cercano. Solo con abrir la puerta, sentirás que estás de vacaciones todos los días. Aquí tienes todo lo que debes saber:- Apartamento de 65 m construidos.- 2 dormitorios con armarios empotrados.- 1 baño completo reformado con ducha accesible.- Amplia terraza con acceso directo a la piscina toldo de 4 m con cofre.- Patio interior techado.- Cocina completa abierta al salón con electrodomésticos nuevos.- Suelo de tarima en toda la vivienda.- Aire acondicionado central ventiladores de techo en todas las estancias.- Totalmente amueblado y equipado.- Rejas de seguridad en puertas y ventanas exteriores.- Piscina comunitaria accesible, con socorrista en julio y agosto.- Orientación Oeste.- Comunidad: 34 al mes - Personal de mantenimiento propio- IBI: 262 al año aprox. Ocio y relax sin salir de casaEl residencial cuenta con piscina comunitaria accesible para todos, con socorrista en temporada alta y un equipo propio de mantenimiento que cuida cada detalle. Aquí no tendrás que preocuparte por nada: solo disfrutar del agua, del sol y del ambiente relajado de vivir frente al Mediterráneo.Terraza que invita a vivirlaLa joya de esta vivienda es su terraza con acceso directo a la piscina. Imagina abrir la puerta por la mañana y sentir que tu día empieza entre un chapuzón y un café al sol. Comodidad lista para entrarCuenta con electrodomésticos nuevos y modernos que facilitan tu día a día. El suelo de parqué aporta calidez, y el aire acondicionado central junto con los ventiladores de techo en todas las estancias garantizan el confort durante todo el año.Ubicación:Lo mejor de la playa y la ciudad, aquí disfrutas de la playa y de la ciudad al mismo tiempo:- Primera línea de la Playa de Los Locos: baja con la toalla y en pocos pasos ya estás en la arena.- Rodeado de bares, restaurantes y comercios para que no te falte nada.- Zonas de juegos infantiles y calas a pocos metros.- Paseo marítimo perfecto para caminar, correr o simplemente contemplar el mar.- Transporte público: a escasos metros tienes una parada de bus urbano que te conecta con la estación de autobuses (interurbanos y aeropuerto). En resumen:Este apartamento no es solo una vivienda, es una invitación a vivir el Mediterráneo de la forma más cómoda y práctica posible: primera línea de playa, terraza con acceso directo a la piscina, comodidad lista para entrar y un entorno con todos los servicios.Un lugar para soñar, desconectar y disfrutar. Anímate y llama, Te acompañaremos en todo el proceso de la compra de tu casa soñadaEstás preparado para vivir una auténtica experiencia No esperes más, llámanos hoy para hacer una cita y ven a descubrir esta maravillosa oportunidad. No te arrepentirás- Este anuncio no es vinculante y puede contener errores tipográficos, se muestra a título informativo y no contractual. El precio de compra de esta oferta no incluye los impuestos que resulten de aplicación conforme la legislación vigente. Las condiciones definitivas serán confirmadas por la agencia en el momento anterior a la compra y quedarán reflejadas en el documento de reserva, nuestros agentes estarán encantados de solucionar cualquier duda relacionada con esta publicación.

Planificación y diseño: Aire Acondicionado, Ascensor, Calefacción central, Calefacción, Trastero, Terraza Acristalada, Patio Interior, Sauna, TV por Satélite, Aire acondicionado central, Reformado

Al exterior: Piscina Comunitaria, Primera línea, Urbanizacion

Bancos, cajeros automáticos: Novagalicia Banco - 230m
Supermercados: Eroski - 30m; 24 Horas - 110m; ALDI - 1500m; Lidl - 1620m
Tiendas, farmacias: Surfin’ Torrevieja - 120m; Matías Foods 24 - 190m; Domti - 190m; Peluquería Ninfa - 220m; Farmacia Ldo. Ignacio Muñoz Martínez - 230m; Astoria Patrimi - 1550m
Cafés, restaurantes: The Locos Beach - 30m; Kiosco Gloria - 50m; Kiosco Antonio - 90m; Cervecería Artesanal Amber - 140m; La Ola - 150m; Abadìa - 190m
Playas: Playa de Los Locos - 50m; Playa del Cura - 650m; Platja del Cura - 970m; Cala Higuera - 1230m; La zorra - 1510m
Paradas de autobus: Avenida Mariano Ruíz, 5 - 70m; Playa Los Locos 1 - 80m; Avenida Mariano Ruíz, 24 - 190m
Educación: Escuela de Educación Infantil Maestro Gratiniano Baches - 850m; Colegio Público Maestro Salvador Ruso - 860m; Instituto Mediterráneo - 1010m; Colegio Público Virgen del Carmen de Torrevieja - 1120m; Colegio de Educación Infantil y Primaria Cuba - 1270m

Playa 10 m

Hipoteca

Tatyana Viteazu

+34 965 993 278
Contacta al vendedor [ Ref.: 3/VIK114 ]
Al hacer clic en "Enviar mensaje", acepta la Política de privacidad
Comprar · Torrevieja
Comunidad Valenciana, España
€ 144 000
Apartamento · 3/21-SG126
Playa: 100m
2
·
2
·
75 m2
Comprar · Torrevieja
Comunidad Valenciana, España
€ 144 500
Apartamento · 3/TE1024
2
·
1
·
80 m2
Comprar · Torrevieja
Comunidad Valenciana, España
€ 144 995
Apartamento · 3/19175
Playa: 450m
3
·
2
·
74 m2
Comprar · Torrevieja
Comunidad Valenciana, España
€ 145 000
Apartamento · 3/19577
1
·
1
·
50 m2
Comprar · Torrevieja
Comunidad Valenciana, España
€ 145 969
Ático · 3/17489
Playa: 300m
1
·
64 m2
Comprar · Torrevieja
Comunidad Valenciana, España
€ 146 000
Apartamento · 3/21-MR35
Playa: 500m
3
·
2
·
95 m2
Comprar · Torrevieja
Comunidad Valenciana, España
€ 147 409
Apartamento · 3/6-20.998
Playa: 450m
2
·
1
·
60 m2
Comprar · Torrevieja
Comunidad Valenciana, España
€ 147 969
Apartamento · 3/18811
Playa: 200m
2
·
1
·
80 m2
Comprar · Torrevieja
Comunidad Valenciana, España
€ 148 000
Apartamento · 3/13-mar02
1
·
69 m2
Comprar · Torrevieja
Comunidad Valenciana, España
€ 148 500
Apartamento · 3/SL5149
Playa: 100mVistas: Mar
2
·
1
·
62 m2
Comprar · Torrevieja
Comunidad Valenciana, España
€ 149 000
Apartamento · 3/21-S697
Playa: 250m
2
·
1
·
60 m2
Comprar · Torrevieja
Comunidad Valenciana, España
€ 149 000
Apartamento · 3/TMC1876
2
·
1
·
56 m2